35 796 руб.
Цена действительна только для интернет-магазина и может отличаться от цен в розничных магазинах
Наличие и сроки поставки уточняйте у менеджера
Наличие и сроки поставки уточняйте у менеджера
-
+
- Описание
- Характеристики
- Задать вопрос
-
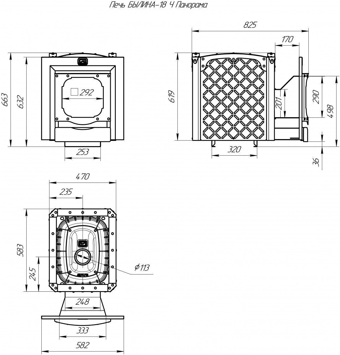
Печь для бани Былина 18 Ч Панорама
Оригинальный дизайн
Внешний вид печи для бани с чугунной топкой «Былина» выдержан в древнерусском стиле. В оформлении использованы угловые набойки с массивными заклепками, добротные широкие ленты металла окаймляют вместительную каменку, в орнаменте конвектора узнаются элементы художественной ковки и даже очертания звеньев кольчуги.
Надежность и долговечность
«Былина» - честная печь! Толщина корпуса чугунной топки составляет настоящие 10 мм! Именно поэтому масса печи без камней достигает 139 кг в модификации Былина 24Ч Панорама!
Собственное производство
Чугунные топки для «Былины» мы производим в собственном литейном цеху из серого чугуна по ГОСТ 1412-85. Классическая внешняя каменка с легкостью вмещает до 101 кг камней в модификации Былина 24Ч и Былина 24Ч Панорама! . А глубокая топка позволяет использовать дрова длиной до 490 мм!
Прочность
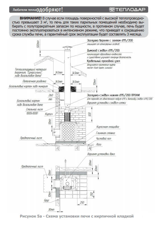
Еще одной отличительной особенностью печи, без сомнений, стала максимально возможная площадь теплообмена за счет большого количества ребер чугунной топки. Да и округлая форма самой топки сконструирована так, чтобы прогревать весь объем каменной закладки без застойных «холодных» зон. В результате имеем максимально жесткую и действительно прочную печь. На печь можно установить любые стандартные элементы дымохода. Гарантийный срок — 5 лет!
Нагревайте парную быстро, парьтесь по-богатырски! -
Модель Былина Производитель Теплодар Объем парилки, м³ 10-18 Топливо Дрова, древесные брикеты Масса камней, кг 60 Масса печи, кг 105 Микроклимат Русская баня Закладка дров Из предбанника Дверца Со стеклом Диаметр дымохода, мм 115 Каменка Открытая Бак Без бака Дополнительные функции С выносной топкой Высота, мм 663 Глубина, мм 589/824 Ширина, мм 477 Длина дров, см 43 Документы
Инструкция Былина, Былина-сетка Размер: 16,8 мбИнструкция закрытая каменка Размер: 1,5 мбСертификат Размер: 714,2 кб -
Вы можете задать интересующий вас вопрос по товару или работе магазина.
Наши квалифицированные специалисты обязательно вам помогут.
Получить скидку
Вы можете купить этот товар дешевле. Укажите свой номер телефона,
и цена автоматически снизится:
и цена автоматически снизится:
#DISCOUNT_PRICE# #OLD_PRICE#





